【联发·红山新澍】
新规2.0先锋之作 ·深圳好房子新物种
红山CLD | 规划设计2.5容积率 | 新一代智慧住区

【基础信息】
【占地面积】:约1.09万㎡
【规定计容建面】:约2.72万㎡
【容 积 率】 :2.5
【总 户 数】 :332户
【楼 层 高】 :1栋一、二单元25F,三单元16F
【梯 户 比】 :2T6、2T4
【车 位 比】 :1:1.08
【推售产品】:建面约69-100㎡
【物业公司】:联粤物业
【物 业 费】 :5.8元/㎡/月
导航地址:深圳·龙华·红山·民塘路
红山高定生活中央区 唯此低密
✨红山以“北站商务中心+中央居住区”双重定位,聚合龙华一半以上的高端资源和配套。红山新澍坐享红山正芯最后一片宜居净土,从此难再有!
❗️深圳新规2.0先锋项目!2.5超低容积率住区,舒适宜居好房子先锋范本!

联发集团 世界500强旗下
•特区脊梁 稳健国企:世界500强建发旗下核心企业,连续19年上榜中国房企百强,屡获中国建设⼯程鲁班奖、中国建筑⼯程钢结构⾦奖等
•联发新澍 湾区首秀:同频国家战略,为新青年定制好房子,提供全场景生活方式解决方案
•百强物业 品质服务:联发物业,国家一级物业管理资质,中国物业服务百强企业TOP20,国际金钥匙联盟成员,中国物业管理协会理事单位
相关数据来源:联发集团官网

联发红山新澍 新规2.0好房子新物种
!新规首发 低密舒居新物种 !
•深圳新规地块,规划设计2.5低密住区:2025年士拍最低容积率地块,低密度=居住高舒适度,打造更低密、更私享、更舒展的居住品质感
•规划设计80m限高,舒适度TOP级:区别于同板块或深圳楼市的超高层,享受更安静的环境、更充足的采光和私密性
•拒绝千盘大户,享受纯粹品质:⽆回迁房、⽆保障房,居住人群更纯粹,舒适氛围佳

!高使用空间 品质人居新物种 !
•新规产品,高使用率,建面约69-100㎡灵动居住空间,以LDKG+X空间打造灵动格局,适配家庭的每一次成长需求
•超级收纳管家,小家越住越大:玄关收纳/厨卫收纳,打开家的隐藏魔法
•10w+豪宅同款配置,精装一步到位:日立中央空调,科勒卫浴,方太厨房全配
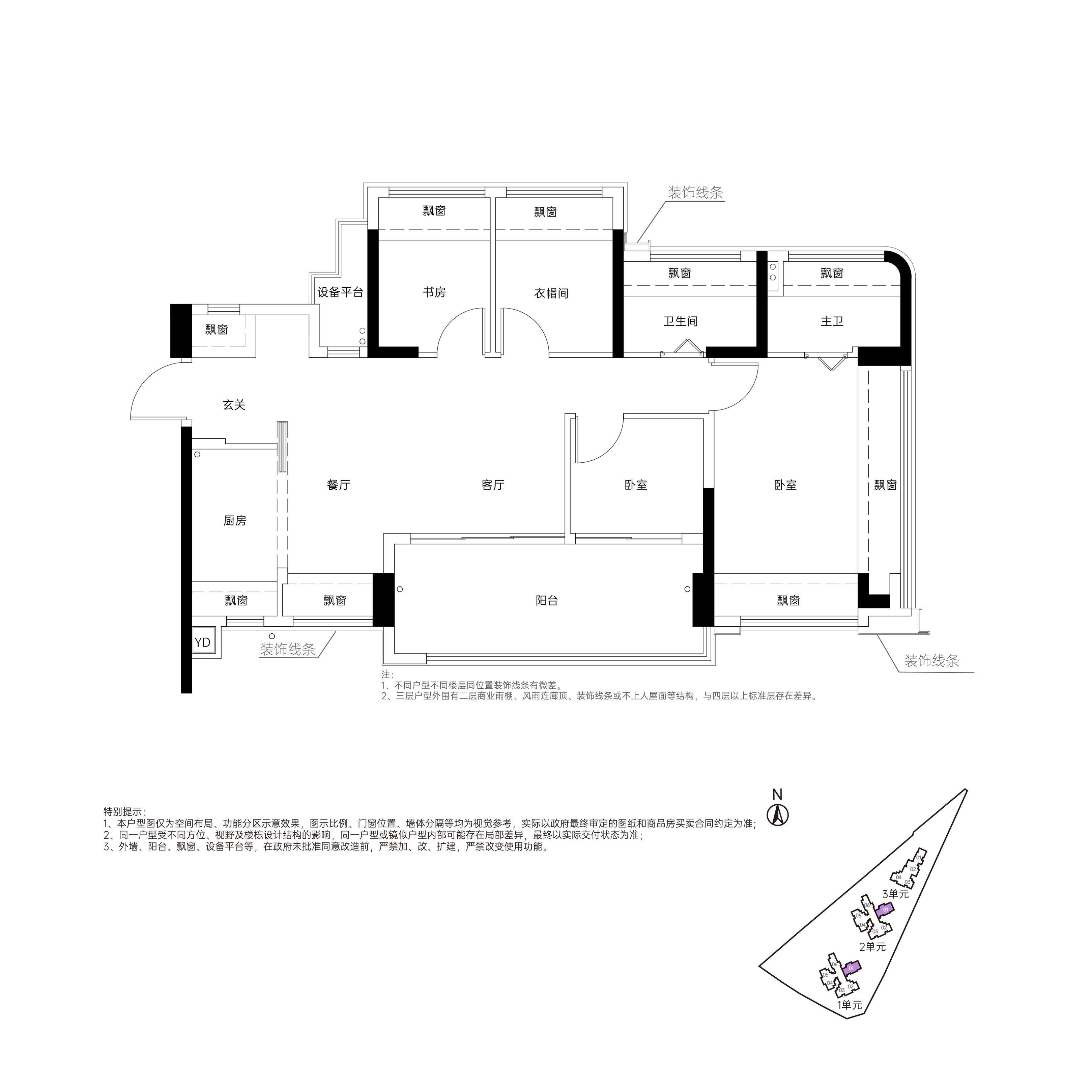
【联发红山新澍】交标样板间户型及视频
龙华首个新国标2.0好房子
容积率仅2.5,总层高16-25层低密社区✨
69-100㎡高得房率产品,使用率拉满!
全盘仅332套
69平户型西南向,合计69套
A户型 建面约69㎡

B户型 建面约78㎡

C户型 建面约84㎡

D户型 建面约100㎡

!科技buff 智慧社区新物种 !
联发与华为深度合作,搭载New Life OS智慧社区系统&华为鸿蒙智家,实现从社区到住宅的全场景智慧体验。
•New Life OS智慧社区系统
①人脸识别,无感通行,门、电梯一步到位
②车辆自动识别,无感通行,追光迎接归家
③天使之眼(儿童游玩区)实时全链路追踪,守护儿童安全
④多场景AI监测,保障全域社区安全
⑤智能传感告警系统,自动联动居家安全

•华为鸿蒙智家系统
①智能中控+智能门锁+APP,一键即享
②与2800个品牌,7700+智能产品无界联动,构建超级终端
③特色加载包(增值服务),切换多元主题场景、氛围
④随着居住使用持续进化,贴心适配每处细节

!“友友+”超级社群 生活聚场新物种 !
联发·红山新澍以“友友+”社群&超级APP,构建线上/下联动的一站式社群生活服务,覆盖兴趣链接、资源共享、社群活动、主理人权益。
•5大共享空间,美好楼下见:学习盒子、办公盒子、便民盒子、健身盒子、多功能盒子(交付后)
•特色商业街区,新青年新享法:特色消费业态,高品质运营
•共建兴趣社群,组建兴趣搭子:全龄化兴趣活动体验,同频相遇
•共创资源平台,合作共赢圈子:多元资源联盟,将社群圈升级为人脉圈

红山正芯 深圳醇熟宜居地
•数字龙华,都市核⼼区,活力创新之城
•密集交轨路网,高品质配套,高效生活之城
•红山知名豪宅住区(龙华地王金茂府,中央原著,莱蒙水榭豪宅区),品质置业之城
高效出行外挂:5线通勤,2站深圳北
•4号线(上塘站)/6号线(上芬站),2站直达深圳北站并可1站直达香港西九龙(部分班次)
•33号线(在建中),预计2026年通车,4站速达宝安国际机场
•22/27号线(在建中),高效连接香蜜湖与前海
(数据来源:百度地图&深圳龙华微信公众号)

精神能量磁场:5馆1体人文圈,灵感策源地
•新时代十大文化设施:深圳市美术馆新馆、深圳图书馆北馆
•城市级文艺馆:深圳文化馆新馆(在建中)、展览馆、演艺馆(开心麻花剧场)
•十五全运会场馆:简上体育综合体
(数据来源:百度地图&中国新闻周刊)

缤纷潮流秀场:200万方醇熟商业轻松逛
•潮奢商场:壹方天地、龙华万象城(在建中)、龙华天虹购物中心
•Chill 烟火:红山6979商业中心、COCO Garden
•地标旗舰:华南首家Costco旗舰店、山姆会员店
(数据来源:百度地图&龙华重点区域中心公众号&奋进龙华公众号)

全龄教育主场:12年菁英教育,学霸成长路
•优质学校:华东师范大学附属深圳龙华学校教育集团未来小学、龙华实验学校教育集团至美校区(九年一贯制)、华东师范大学附属深圳龙华学校
(数据来源:百度地图 *最终学校规划及入学政策以政府教育主管部门及校方颁布的最新政策为准)

都会公园疗愈:5大绿地公园,户外说走就走
阳台山森林公园/深圳德逸公园/红木山郊野公园/龙华绿廊公园/北站中心公园/北站绿芯公园
(数据来源:百度地图)

【免责声明】
1.本项目推广名为“联发·红山新澍”,地名办核准名/备案名为“联发·红山新澍雅居”;开发公司为:“深圳联粤房地产开发有限公司”;
2.本资料为要约邀请,不作为要约或承诺;买卖双方的权利义务以双方签订的《商品房买卖合同》及其补充协议、附件等书面文件为准;
3.本资料对项目周边幼儿园、学校等教育配套资源的介绍,旨在提供相关信息,并不意味着出卖人对就学安排作出任何承诺,最终的学校规划及入学政策以政府教育主管部门及校方颁布的最新政策为准;
4.本资料对周边环境交通、商业及其他配套设施的介绍,旨在提供相关信息,并不意味着出卖人对此做出承诺,相关内容不排除因政府规划、政策规定及出卖人未能控制等原因发生变化,地块信息来源:中国财经网:http://finance.china.com.cn/house/20250620/6250985.shtml。
5.本资料所发布的内容为2026年3月19日之前的信息,在法律允许的范围内保留对本资料修改的权利,敬请留意最新资料。

菁英教育 领航成长
龙华区实验学校至美校区、华东师范大学附属深圳龙华学校、华东师范大学附属深圳龙华学校教育集团未来小学,优质教育资源环绕。

▲学校分布示意图

▲学校录取线(数据来源于网络https://mp.weixin.qq.com/s/RCxLiMdQI11-ddNLx6crbg?scene=1)
龙华区实验学校至美校区(初中)
(学区划分信息来自初一学区电子地图网址:https://zsjz.szlhq.gov.cn:8090/visitlhuagbcyxqdt)
龙华区实验学校(初中部)采取单片区和大学区积分入学。单校划片范围内根据户籍类型、住房类型以及社保缴纳期限综合赋分。先类别后积分,同类别对比积分。
•初中部:福龙路以东、新区大道以东、中梅路以北、民塘路以西、人民路以西范围。

▲学区划分示意图(各公办学校学区地图边界可能会因工作站,居委会行政划分界线存在误差,公办学校学区范围最终以龙华区教育局文件公布的表述为准。家长若因边界无法确定所属学区,请拔打学校招生电话咨询。)
学校介绍
•详细地址:深圳市龙华区民治街道龙塘二路与大洋东街交汇处
•所在区:龙华区
•邮编:518000
•学校性质:公办
•学校类别:初中 (初级中学)
•餐食情况:配餐
•招生方式:统一招生
•上级主管部门:龙华区教育局
•监督电话:0755-28062186
•联系电话:0755-28062186
深圳市龙华区实验学校教育集团,举办单位为区教育局,单位最高行政管理岗位等级为职员七级,经费形式为财政核拨,主要职责为承担九年一贯制的教育教学任务,共有 3 个成员校:至真校区(原深圳市龙华区实验学校,承担九年一贯制教育教学任务)、至善校区(承担九年一贯制教育教学任务)、至美校区(承担九年一贯制教育教学任务),集团实行独立法人模式。集团秉承“修业修为,至善至美”办学理念,遵循“问学道,共生长,有担当”的校训。以“善美”为核心文化,以科技创新为主要特色,国学经典课程与国际素养课程融通,深入实施贯通九年的善学、善思、善行等“善美教育”三大课程体系,积极探索培养会学习、会创造、会生活的善美少年,守正创新办好面向未来、品质高端、师生都具有积极个性特质的粤港澳大湾区现代化教育集团示范校。(信息来源:积分入学办公室官微)
✨学校亮点✨
师资力量强:引入深圳市“孔雀计划”海外高层次人才3人、地方级领军人才1人,全国优秀教师4人、特级教师8人、正高级教师6人,构建强大的师资团队。(信息来源:龙华教育官微)
丰硕的成果:曾入选“全国中小学课堂改革年度十大样本”,并获评中国STEM教育领航学校等多项国家级荣誉。(信息来源:深圳市龙华区实验学校教育集团官微)

▲龙华区实验学校至美校区实拍图
华东师范大学附属深圳龙华学校教育集团未来小学
(学区划分信息来自小一学区电子地图网址:https://zsjz.szlhq.gov.cn:8090/visitlhuagbxyxqdt)
龙华未来小学(小学部)采取单片区积分入学。单校划片范围内根据户籍类型、住房类型以及社保缴纳期限综合赋分。先类别后积分,同类别对比积分。
•单片学区:洁玉路以北、民塘路以西、腾龙路以东、建设东路以南的范围。
•电脑随机派位学区:由未来小学学区、龙华区实验学校小学部学区、和平实验小学学区3所学校学区范围组成。

▲学区划分示意图(各公办学校学区地图边界可能会因工作站,居委会行政划分界线存在误差,公办学校学区范围最终以龙华区教育局文件公布的表述为准。家长若因边界无法确定所属学区,请拔打学校招生电话咨询。)
学校介绍
•详细地址:深圳市龙华区简上路与腾龙路交叉口东侧
•所在区:龙华区
•邮编:518131
•学校性质:公办
•学校类别:小学
•餐食情况:配餐
•招生方式:统一招生
•上级主管部门:龙华区教育局
•监督电话:0755-21048617
•联系电话:0755-21048617
深圳市龙华区未来小学,是华东师范大学附属深圳龙华学校教育集团成员校,也是龙华区第一所以“未来”命名的学校。坐落在深圳北站核心商业区,1976年创办,2020年更名为“未来小学”,2023年加入集团。新校址2017年启用,占地2.46万平方米,建筑面积2.65万平方米,坐北朝南,四季花香。学校现有56个教学班,2746名学生,170名教职工,是深圳市民身边的好学校,深圳市最受关注新锐学校。(信息来源:积分入学办公室官微)
✨学校亮点✨
集团化典范:隶属华东师范大学附属深圳龙华学校教育集团成员校,也是龙华区首所以“未来”命名的学校。
师资力量强:学校现有56个教学班,2746名学生,正高级教师1人,特级教师1人,高级教师16人,硕士研究生48人,其中校级领导均为市、区名师。近五年招聘优秀毕业生近60人,其中“双一流”大学53人,世界前100强海外高校6人,教育部直属师范20人。
智慧先驱者:学校先后荣获深圳市首批智慧校园建设试点学校、深圳市第二批智慧校园示范校、深圳市首批创客实践室、广东省信息化中心学校、龙华区首批课程改革特色学校,为“双区”深圳智慧教育示范校名单(全市仅25所)。
(信息来源:深圳市龙华区未来小学官微)

▲深圳市龙华区未来小学实拍图
华东师范大学附属深圳龙华学校(小学/初中)
(学区划分信息来自小一学区电子地图网址:https://zsjz.szlhq.gov.cn:8090/visitlhuagbxyxqdt 以及 初一学区电子地图网址:https://zsjz.szlhq.gov.cn:8090/visitlhuagbcyxqdt)
•小学部、初中部单片学区:洁玉街以北、民塘路以西、腾龙路以东、建设东路以南范围。
•小学部、初中部电脑随机派位学区:由未来小学学区、龙华区实验学校小学部学区、和平实验小学学区范围组成。

▲学区划分示意图(各公办学校学区地图边界可能会因工作站,居委会行政划分界线存在误差,公办学校学区范围最终以龙华区教育局文件公布的表述为准。家长若因边界无法确定所属学区,请拔打学校招生电话咨询。)
学校介绍
•详细地址:
•所在区:龙华区
•邮编:518000
•学校性质:公办
•学校类别:九年一贯制学校(含小学部、初中部)
•招生方式:统一招生,按区教育局积分入学政策录取
•上级主管部门:龙华区教育局
•监督电话:0755-29360013
•联系电话:0755-29360013
华东师范大学附属深圳龙华学校教育集团作为一所现代化、国际化、创新型的九年一贯制公办学校,是珠三角地区的第一家华东师范大学教育集团旗下成员。由华东师范大学、龙华区人民政府与深圳悦茂置业有限公司合作共建,自2022年9月开办以来,便备受社会关注。学校占地面积24400.04平方米,总建筑面积达79259.00平方米,总投资额高达56556.38万元。学校秉承“幸福教育——为了每一个人”的教育理念,贯彻“和合”校训,致力于培养具有积极心态、健康体魄、耐挫人格、厚实学力、传统美德、环球视野、首创精神、实践能力及审美情趣的未来公民。校园环境优美,设施一流,是学生学习与成长的理想之地。(信息来源:华东师范大学附属深圳龙华学校官微)

▲华东师范大学附属深圳龙华学校实拍图
集团核心引领:作为华东师范大学附属深圳龙华学校教育集团的牵头学校,承载教育创新与师资培养核心职能,辐射带动集团内各成员校共同发展。
“钱学森班”创新培养:深圳市首家九年一贯制“钱学森班”,以钱学森“大成智慧”教育理念为指导,开设航天科普、人工智能等特色课程,组织学生参与高水平科创赛事,培养爱国创新、科技报国的未来人才,覆盖小学至初中全学段。
课程创新实践:搭建“10+6+X”梯度化幸福课程体系,全面覆盖积极心态、健康体魄、学力素养等十大核心素养,涵盖人文、科学、数智等六大课程领域。
人工智能赋能教育:将人工智能写入学校顶层设计,建成统一数据平台,布设智慧终端教室,获评“中小学人工智能教育实验校”,为深圳打造人工智能先锋城市贡献教育场景。
高端师资配置:建立教师分层分类培养机制,依托华东师大教育集团教研联盟、专家驻校、跟岗研修等平台,贯通“研训赛展”一体化培养链。教师在教学竞赛、教研成果等方面成果丰硕,累计获612项荣誉。
(信息来源:华东师范大学附属深圳龙华学校官微)
备注:有关项目周边学校等教育配套资源等信息介绍旨在提供参考信息,并不意味着对就学/入学安排作出承诺。教育资源的名称、办学性质、办学规模、学位设置、开学(班)时间、招生条件、收费标准及招生区域存在调整的可能,应以政府教育主管部门及办学方颁布的政策规定为准。图片来源于网络,若有侵权请联系删除
资料制作时间:2026年3月