哲东自建房设计分享第143期
江西农村自建房建筑设计探索与分享
面宽只有7米,进深却14.5米,这样的窄长宅基地,在江西农村太常见了!不少老乡都愁:建房怕盖成黑长条,怕造价超标,怕住着压抑,还怕房间不够住。
今天这套专为江西老乡设计的7.0m×14.5m窄面宽别墅,彻底解决这些难题!不搞浮夸造型,不额外加造价,靠一个通高厅+玻璃顶,把窄房子做通透,三层布局全是实用细节,多代同堂住得超舒服,农村建房直接抄作业都不踩坑!

一、宅基地基础信息
基地尺寸:面宽7.0米,进深14.5米
核心需求:造价有限、造型简约、实用性第一,适合多代同堂居住
很多人觉得窄面宽建房难出效果,空间容易压抑,这套方案偏偏打破局限,不堆砌楼层平面,用巧设计让小宅基地也能住出大别墅的感觉,全程性价比拉满!
二、三层全布局详解,每一寸空间都不浪费
首层:老人住得方便,待客也体面
一层主打实用+适老,完全贴合农村生活需求

✅ 进门大厅:专属接待区,过年拜年、亲友串门,摆果盘、放礼品超方便,不占室内生活空间
✅ 左侧楼梯:动线合理,上下楼不绕路
✅ 后部功能区:家庭厅+餐厅+厨房一体化设计,家人做饭、聚餐、休闲无缝衔接,生活氛围超浓
✅ 专属老人房:一楼朝南卧室,不用爬楼梯,起夜、出行都安全,贴心照顾长辈起居
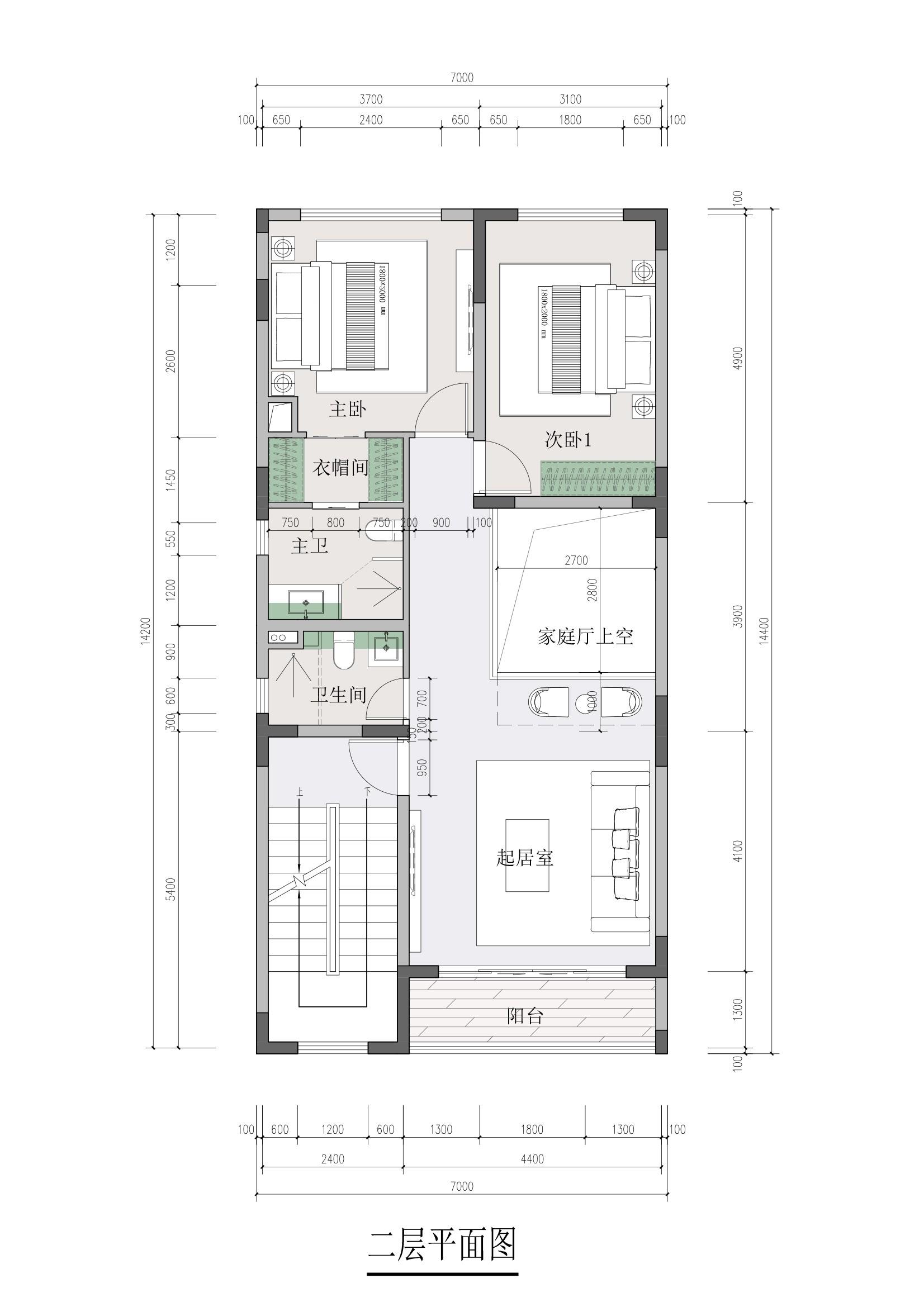
二层:起居私密,主卧舒适度拉满
二层是家人的私密休息区,动静分离超舒服

✅ 起居室:楼梯上来就是休闲小客厅,家人日常看电视、聊天,不用和一楼待客区混用
✅ 两间卧室:北侧布局,其中一间是主卧套房,自带独立卫生间,隐私性和便利性直接拉满;另一间次卧,给孩子住或当客房都合适
✅ 亮点设计:家庭厅通高上空,视觉上瞬间拓宽空间,完全不压抑
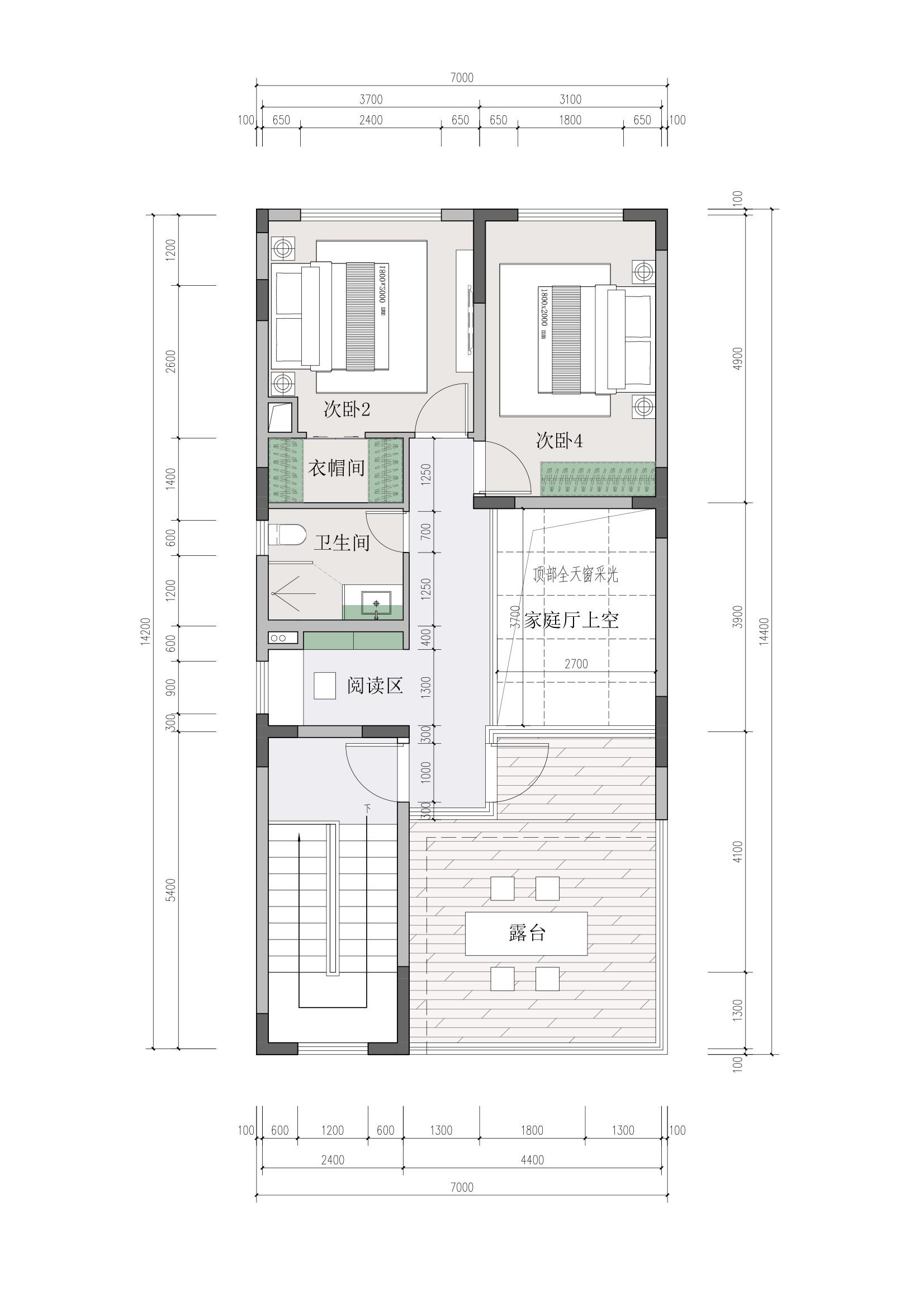
三层:休闲+居住,功能灵活多变
三层主打静谧居住+休闲拓展,利用率超高

✅ 两间卧室:满足二胎家庭或亲友小住需求
✅ 小型阅读区:安静又舒适,喜欢看书的家人超适配;平时杂物多,也能直接改成储藏室,功能随心改
✅ 南侧露台:超大户外空间,日常晒被子、晾衣服超方便,天气好的时候,约家人喝茶、烧烤,惬意又自在
三、核心设计巧思,不增造价还提升居住感
这套方案没有花里胡哨的造型,却藏着建筑师的小心思,零成本提升空间质感,解决窄面宽建房的核心痛点!
1. 三层通高家庭厅,竖向串联整栋房
拒绝三层平面简单堆砌,用通高家庭厅把整栋楼竖向上连为一体,不再是冷冰冰的楼层叠加,而是有温度、有交流感的家,家人在不同楼层都能有互动感。
2. 玻璃采光设计,告别阴暗逼仄
针对窄面宽通高空间容易压抑的问题,顶部专门做玻璃采光顶,二三层开口逐步扩大,三层中庭南侧改成玻璃采光面,自然光直接洒满全屋,白天不用开灯都亮堂,彻底摆脱窄宅基地的昏暗感。

3. 外立面简约干净,造价无压力
外立面不做复杂雕花、夸张造型,线条简洁大方,施工难度低,能省下一大笔造价,农村施工队轻松落地,耐看又不过时,完全符合普通家庭的建房预算。

四、总结
窄面宽宅基地建房,从来不是一味求大、求复杂,实用、舒适、省钱才是农村自建房的核心。这套7×14.5米江西自建房方案,精准适配多代同堂的居住需求,兼顾老人起居、家人休闲和日常待客,用小设计解决大问题,造价亲民还不踩坑,想在农村建窄面宽别墅的老乡,赶紧收藏参考!
#江西自建房 #农村自建房设计 #窄面宽别墅 #自建房布局 #哲东自建房设计