DC娱乐网

高98.8米,义乌中国小商品城在杭总部方案公示

日前,义乌中国小商品城在杭总部方案公布,目前正在公示中。 该项目地址位于杭州市上城区(景芳三堡单元 JG1203-28地

日前,义乌中国小商品城在杭总部方案公布,目前正在公示中。

该项目地址位于杭州市上城区(景芳三堡单元 JG1203-28地块),东至运河西路,南至景芳三堡单元JG1203-29地块,西至景芳三堡单元JG1203-27地块,北至凤起东路,用地面积13921平方米。

区位图

鸟瞰图

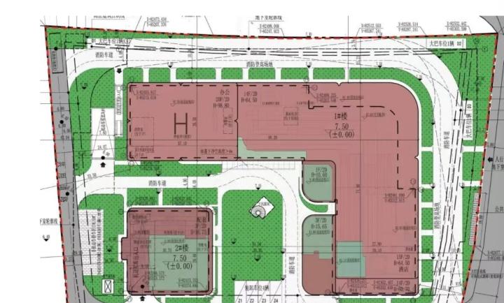
平面图

早在今年6月4日,在浙江省自然资源网上交易中心的竞拍中,有一则消息引发了关注:浙江中国小商品城集团股份有限公司的全资子公司杭州商博南星置业有限公司,以5.68亿元的底价成功竞得了杭州上城区的杭政储出60号地块。

据悉,该地块位于景芳三堡单元JG1203-28,占地广阔,建筑面积可观,是商务金融用地的理想选择。其出让年限为40年,容积率控制在合理范围内,建筑密度和高度也有明确限制。该地块位于杭州钱江新城二期的核心区域,紧邻京杭大运河,周边环境优越,是商业发展的黄金地段。

项目建筑规划

根据规划,该项目将建设两栋14层的商务办公楼。其中,T1#楼将作为义支付全球总部、Chinagoods技术研发中心以及浙江智库等核心机构的所在地。而T2#楼则规划为800㎡的商业大平层,用于办公产品的展示和销售。整个项目的建设周期预计为2-3年,届时将呈现出一个现代化的商务办公区域。

值得一提的是,钱江新城二期作为近年来备受瞩目的开发区域,已成为2025年杭州楼市的热点板块。其独特的地理位置和优越的商业环境,吸引了众多投资者和开发商的关注。此次项目的成功竞得,无疑将为该区域的商业发展注入新的活力。

选址杭州

意图构建跨区域协同发展新模式

公开资料显示,浙江中国小商品城集团股份有限公司,创立于1993年,是一家国有控股上市企业。该企业独家运营着全球规模最大的小商品批发市场——义乌中国小商品城。作为“世界商品超市”,义乌在2024年实现了惊人的出口总额,达到5889.6亿元,这一数字相当于整个浙江省的七分之一,同时也占据了全国总量的2.4%。

今年上半年,小商品城集团公布了其经营业绩。数据显示,该集团上半年的营业收入为31.61亿元,同比增长率高达17.93%。预计的归母净利润范围为16.30亿至17亿元,同比增长率预计在12.57%至17.40%之间。同时,义乌市场的日均客流量达到了23万人次,外商到访量也呈现出显著增长。特别值得一提的是,其旗下的支付平台“义支付”在上半年内的收款金额超过了25亿美元,同比增长率更是超过了47%。

该公司在拿地公告中揭示了背后的战略考量。公司正致力于构建跨区域的协同发展新模式,充分利用义乌在全球小商品产业中的领先地位与杭州丰富的数字创新资源。通过创新的“飞地经济”模式,公司旨在搭建一个连接产业各方的平台。该平台不仅计划将低空经济、跨境电商、智能物流等领域的优秀企业引入义乌,还将源源不断地向义乌输送数字结算、AI算法等前沿技术。