DC娱乐网
又又又成功收款115元,又是美好的一天
2024-10-17 13:37:25
小设计丫邓
家居
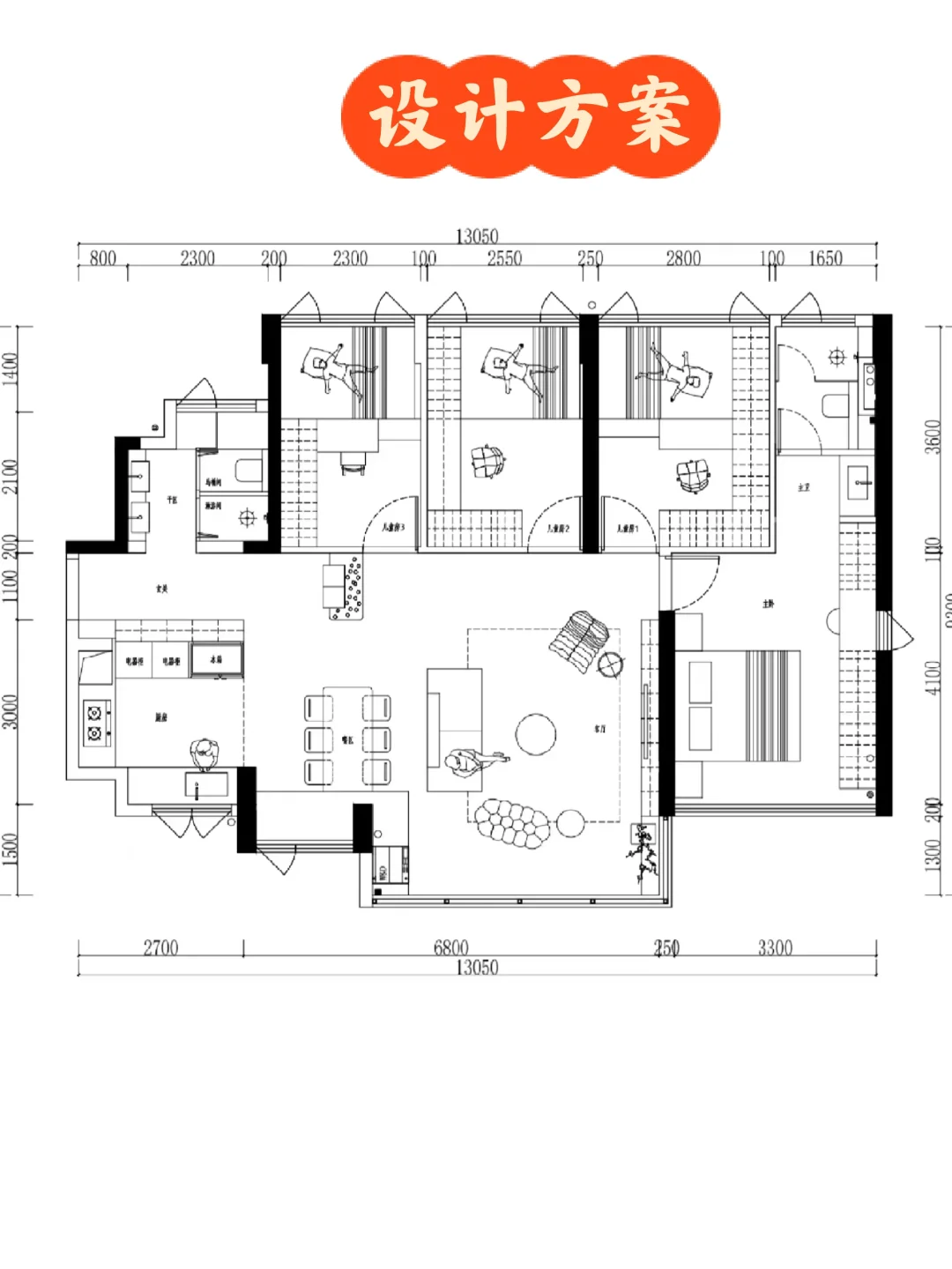
设计方案 9毛9一平,9毛9一平啦 效果图 6.99一平 施工图 3.99一平 彩平图 30元一张 放图 50元一张
评论列表
画船听雨眠
2
2024-10-17 20:08
这户是门对门,所以做了隔断嘛
Kkkkitten
1
2024-10-17 20:08
我想要平面设计,怎么联系呀
热门分类
推荐
热榜
军事
NBA
体育
社会
明星八卦
娱乐
财经
科技
汽车
历史
国际
游戏
动漫
公益
搞笑
商业
互联网
数码
国际足球
房产
家居
时尚
科学探索
职场
育儿
股票
教育
影视
情感
热点
中国军情
武器
中国南海
中国足球
亚洲杯
科比
综合体育
CBA
投资
楼市
大咖秀
外汇
创业
风口
SUV
豪车
概念车
优惠
新能源
美国
欧洲
朝日韩
俄罗斯
孕期
街拍
恋爱攻略
婚姻
正能量
评论列表