为什么“巴厘岛”永远是巅峰?
平面图直接真相
【第一张】
Alila乌鲁瓦图酒店【巴厘岛】
建筑/室内设计:WOHA设计
优势:大庭院/海景/多重动线
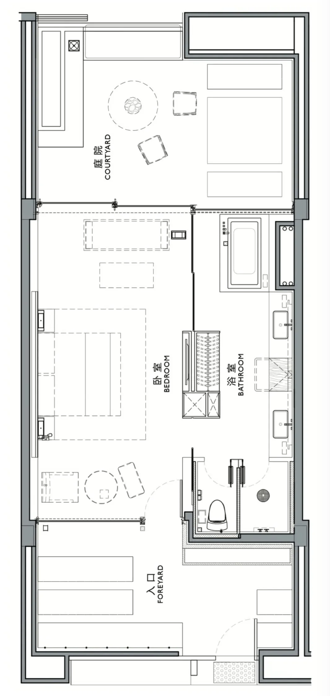
【第二张】
Alila酒店【乌镇】
建筑/室内设计:GOA大象设计
特点:前庭后院/客房面积大
【第三张】
Alila酒店【上海】
室内设计:琚宾
特点:上海市中心
【第四张】
Alila酒店【珠海】
室内设计:琚宾
特点:海景/小景
【总结】
室内设计的成功天时(城市环境/消费力)
地利(规划/建筑/景观/室内/产品定位)
人和(懂行的业主/优秀设计师/合理预算)
壹品曹(路易斯.曹)
平面优化倡导者
设计圈第一评论员



