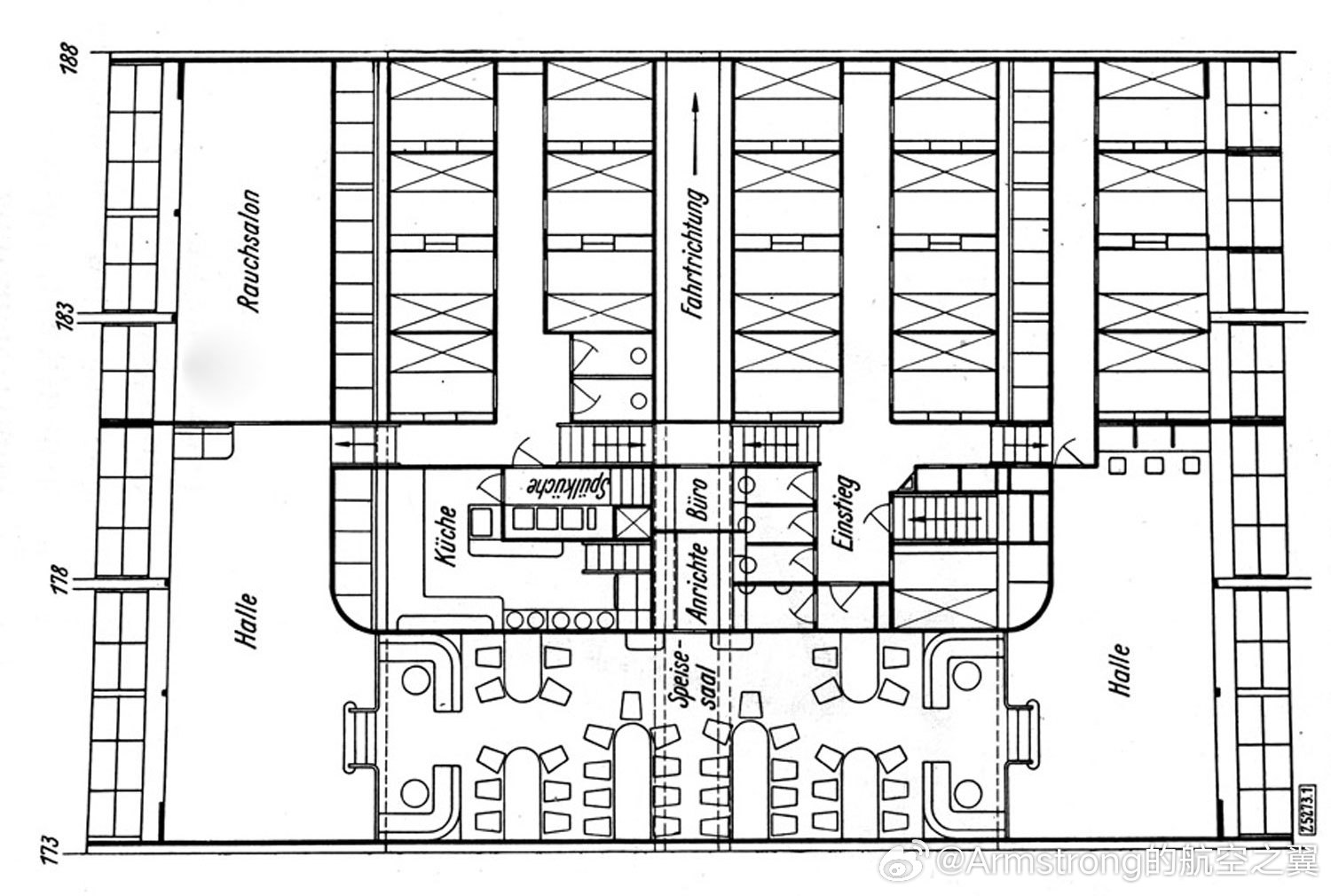
LZ-130齐柏林飞艇内部宽敞的餐厅和客房。航空创作计划
LZ-130 “齐柏林伯爵二号”(Graf Zeppelin II)是历史上最后一款大型载客飞艇。虽然它因二战爆发和氦气供应问题从未投入商业运营,但其内部设计在LZ-129 “兴登堡号” 的基础上进行了大幅改进,旨在提供更加宽敞和现代化的奢华体验。





LZ-130齐柏林飞艇内部宽敞的餐厅和客房。航空创作计划
LZ-130 “齐柏林伯爵二号”(Graf Zeppelin II)是历史上最后一款大型载客飞艇。虽然它因二战爆发和氦气供应问题从未投入商业运营,但其内部设计在LZ-129 “兴登堡号” 的基础上进行了大幅改进,旨在提供更加宽敞和现代化的奢华体验。




