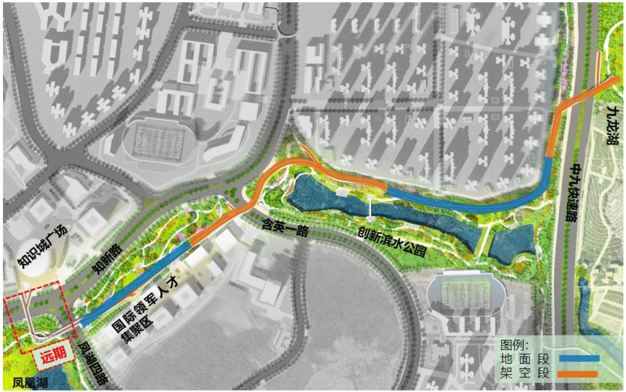
知识城凤凰湖-九龙湖云道效果图曝光,工期180天。 知识城凤凰湖-九龙湖云道项目位于广州市黄埔区中新广州知识城。 项目位于知识城凤凰湖与九龙湖之间,云道路线由南向北依次串联凤凰湖公园、创新滨水公园、九龙湖公园三大滨水节点,云道主线长度约1615米,其中桥梁段长约为858米,桥梁面积约4713平方米;道路长度757米,道路总面积 (含支线道路)约为5563平方米。园建工程建筑面积约为575平方米,并在已建碧道(现状2.46公里凤凰湖环线)周边增设相关标志 标牌等工作内容。 云道主要由光之翼云道及琴之弦人行桥组成,光之翼云道起点为凤湖四路,跨越含英一路到创新滨水公园,云道桥面人行道标准净宽为3.6m,全长约538.303m;琴之弦人行桥跨越中九快速路,并在九龙湖处设置坡道落地,标准人行道净宽为4.6m,其全长约275.05m。 主要建设内容包括:道路工程、桥梁工程、绿化工程、交通工程、给排水工程、电气工程等。 项目总投资9906万元,其中工程费用8367万元,工程建设其他费用1067万元,预备费472万元。项目所需建设资金由黄埔区财政安排解决。 最高投标限价:65,551,244.51元。 本项目施工总承包工期:180日历天,暂定开工日期2026年4月25日。 目前,知识城凤凰湖-九龙湖云道项目正在进行施工总承包公开招标。









