每一座城市,都在时代浪潮中不断革新。
随着城市发展重心与战略布局的调整,总会有一些板块站在风口之上,异军突起。
在兰州,譬如先后崛起的雁滩、西站、三滩……
而今,同属中心城区的西站南广场板块,也迎来了自己的高光时刻。
随着各类基础设施升级、土地腾退、业态布局、交通规划等利好倾盆而至,西站南广场板块价值正在全面改写。
毫不夸张地说,西站南广场板块已真正进入价值起爆期,一个山水共融、宜居宜业的新城区正在快速崛起。
这一系列红利,连带着属于区域楼市的又一个高峰期也悄然到来。
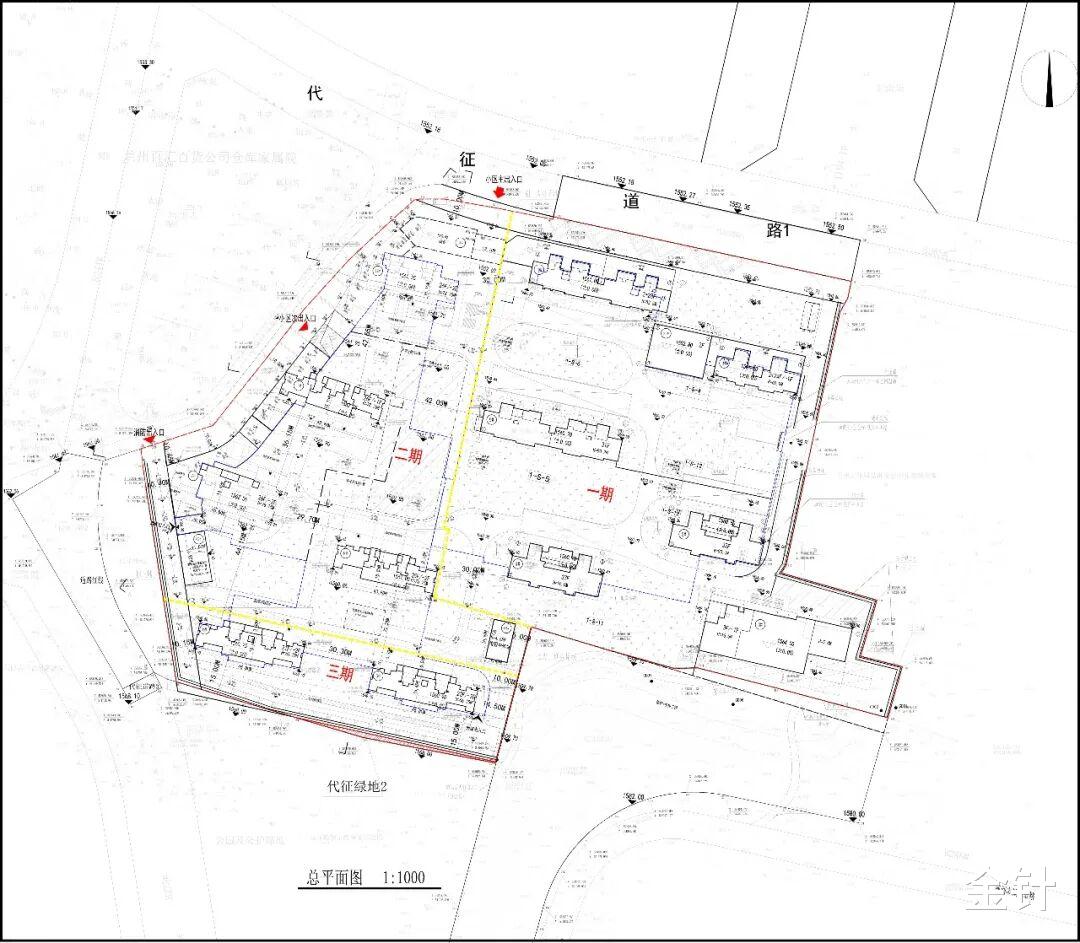
4月10日,兰州市自然资源局公布了兰州塞纳公园二期项目建设工程规划许可证,总平图同步曝光。

项目总平面图 来源@兰州市自然资源局
据了解,该项目由中天健集团和兰州百汇百货有限公司合作开发。
项目位于兰州西站南广场晏家坪片区,龚家坪北路以东、北景芫小区以西、民乐路以南、省建一公司杨家桥家属院以北范围。
根据公示,该项目总建筑面积约71920.94平方米。

项目技术经济指标一览表总表 来源@兰州市自然资源局
其中,项目住宅建筑面积45791.75平方米,商业配套面积1808.05平方米,规划布局有4栋25、26纯板楼住宅,共计412户。
不计容建筑面积7838.59平方米,包含4085.31㎡的封闭阳台1/2、541.38㎡肉菜市场、504.12㎡托老所、331.55㎡社区用房、172.57㎡社区卫生服务站等基础设施。
从配套优势来看,项目的核心竞争力突出。
项目整体位于西站南广场板块核心,临靠兰州西站、地铁1号线,能够实现高铁、地铁无缝换乘,高效衔接跨城出行与主城通勤,交通通达性高。
同时,该项目位处兰州中心、中天健广场、西站南广场商圈的辐射范围,可一站式满足居民购物、休闲、消费等多元生活需求。
此外,该项目周边还有龚家湾第三学校、兰州市第八十六中学、兰州市第八十八中学(校本部),兰州大学第一医院(西站院区)、甘肃省博物馆等优质配套,价值潜力突出。
据了解,该项目将会打造成超低公摊、超高得房率的新规产品,相较于传统住宅,能为业主提供更多实际使用空间,兼顾居住舒适度与性价比,产品优势突出。

项目效果图(二期、三期)
随着西站南广场片区基础设施建设的全面提速,项目所处区域也正步入价值爆发的关键阶段。
截至目前,南广场中车兰州机车厂的征拆工作已基本完成。
根据公开消息,预计2027年年底前土地就能全部移交完成,腾退的土地面积约41.65万平方米(合624.71亩),将纳入南广场192.3公顷开发范围。
未来将打造成集居住、商业、公共服务等业态于一体的复合型城市空间,为板块发展注入全新动力。
与此同时,西客站综合交通枢纽疏改畅项目也正在同步发力,待这一项目完工后将彻底优化南广场路网布局,破解区域交通瓶颈。
根据规划,该项目将新建6条规划路、扩建1条主干道,其中包括逐步打通S299#路、T112#路、S260#路等6条规划路。
同时对建西西路(武威路-南环路)段实施拓宽改造,将现有双向四车道升级为双向八车道,大幅提升道路通行能力,有效缓解区域交通压力。
民乐路拓宽方案可行性论证也正在进行,待这一系列道路工程全部落实后,兰州西站南广场将彻底摆脱路网零散的现状,构建起“四横七纵”的完善路网格局。

南广场路网示意 制图@指兰针
未来,交通路网的重构、基础设施的完善、土地资源的腾退,都将共同推动西站南广场土地价值与功能布局的双重升级。
而这一住宅项目的上新,将会有效丰富西站南广场板块住宅供给,叠加其新规产品优势,也将更好地契合当下置业需求,为意向扎根该区域的置业者提供更具价值的选择。
可以预见,随着西站南广场整体开发的持续推进、城市功能的不断完善,这片区域的人居价值、商业活力与板块能级都将迎来跨越式提升。
未来已来,价值可期。
兰州西站南广场,正以全新姿态强势崛起,一个更现代、更便捷、更宜居的西站南广场正呼之欲出。
