知识城腾龙大道-科教一路人行天桥工程位于广州市黄埔区中新广州知识城。腾龙大道(即知明路)南延长线与规划三路交叉口南侧。

项目旁边有西安电子科技大学广州研究院和广州大学黄埔研究院两所高校,未来人行过街需求较大,市民及学生过街需要绕行至附近人行过街斑马线,绕行距离较远及红绿灯等待时间较长,为便捷市民及学生通行,减少行人穿行腾龙大道南延长线带来的安全隐患及对现状交通的影响,提高车辆行驶的舒适性、安全性和快捷性,减少交通拥堵和交通事故的发生,更好地适应周边地区的发展,在此处新建一座人行天桥。

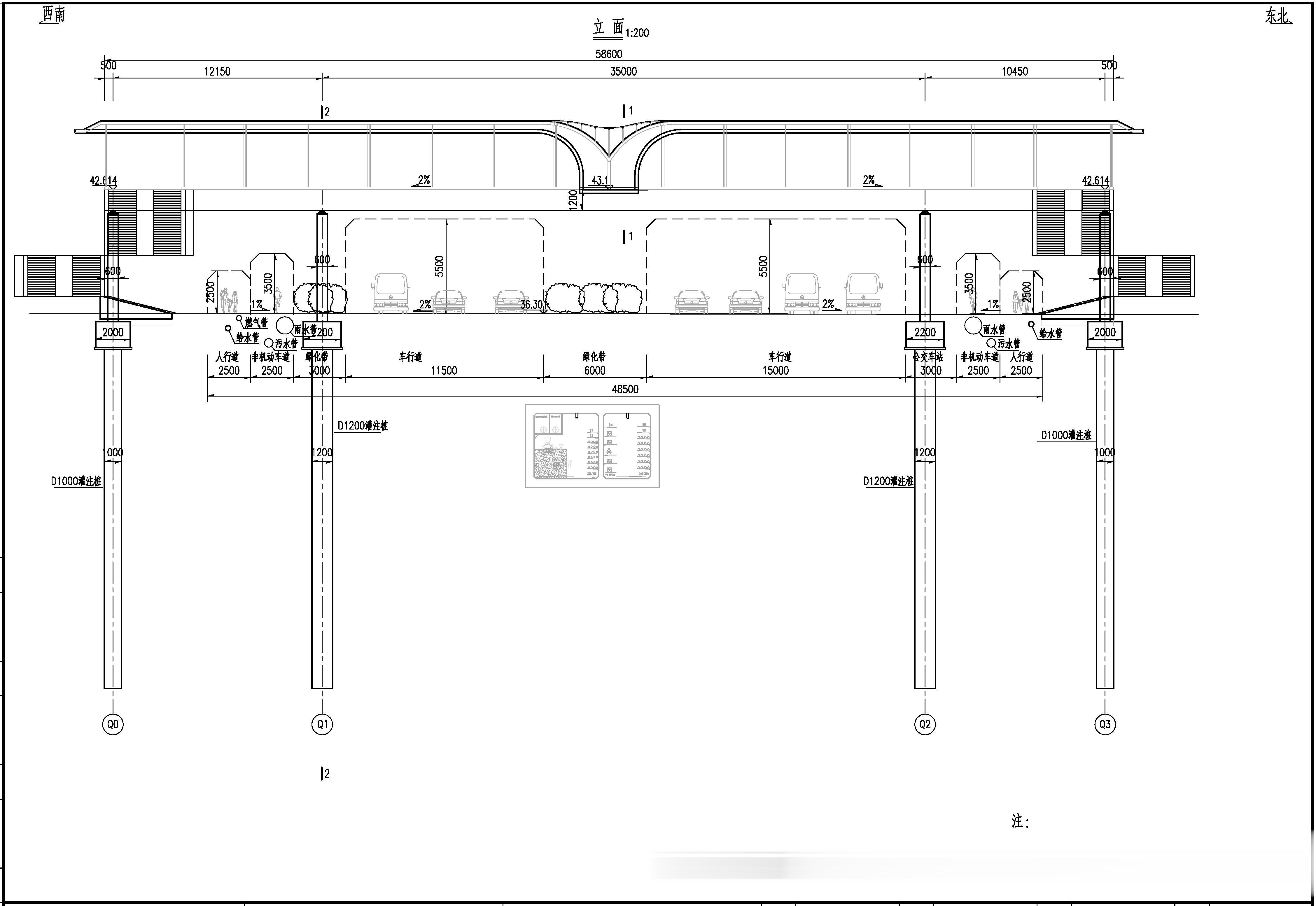
本项目总体呈东西走向,桥梁上跨腾龙大道,桥梁总长约58.6米,桥宽5.2米,梯道两边各长约43.55米,西侧梯道宽度5.2米,东侧梯道宽度4.7米,并设置两台无障碍垂直电梯。

天桥采用单边折返梯道的布置形式,主桥跨径组合为(12.65+35+10.95)m,上部结构采用钢箱梁结构,梁高1.2m,桥梁总宽5.2m,人行净宽3.5m,主墩采用变截面花瓶墩,通过承台与桩基础连接。梯道采用现浇钢筋砼板梁结构,梁高0.5m,踏步尺寸为40×10cm,总宽5.2m(4.7m),人行净宽4.2m,下部结构采用圆柱墩接桩基础。

建设内容主要包含桥梁工程、道路工程、给排水工程、照明工程、绿化工程、交通工程等。最大跨径35米。
项目概算总投资为807.57万元,其中建安工程费672.65万元。
项目施工总承包最高投标限价:657.428393万元。
项目施工总工期:365日历天
目前,知识城腾龙大道-科教一路人行天桥工程正在进行施工总承包公开招标。