DC娱乐网

匠人先行的文章

一层现代风格别墅简直是理想之居!在大城市打拼累了,回农村建这么一栋,简直不要太惬

一层现代风格别墅简直是理想之居!在大城市打拼累了,回农村建这么一栋,简直不要太惬

一层现代风格别墅简直是理想之居!在大城市打拼累了,回农村建这么一栋,简直不要太惬
15米×8.2米的二层乡村自建房,布局起来超有发挥空间。
一层可以把客厅设计得宽

15米×8.2米的二层乡村自建房,布局起来超有发挥空间。 一层可以把客厅设计得宽

15米×8.2米的二层乡村自建房,布局起来超有发挥空间。 一层可以把客厅设计得宽
二层乡村自建房设计分享,占地尺寸:10.5米X9.7米。
功能布局:4房4厅2卫

二层乡村自建房设计分享,占地尺寸:10.5米X9.7米。 功能布局:4房4厅2卫

二层乡村自建房设计分享,占地尺寸:10.5米X9.7米。 功能布局:4房4厅2卫
中式风格的乡村别墅装修好看吗?

中式风格的乡村别墅装修好看吗?

中式风格的乡村别墅装修好看吗?
小而美的乡村自建房,红砖好看也挺好看。
乡村自建房追求“慢“生活氛围感,而不是过

小而美的乡村自建房,红砖好看也挺好看。 乡村自建房追求“慢“生活氛围感,而不是过

小而美的乡村自建房,红砖好看也挺好看。 乡村自建房追求“慢“生活氛围感,而不是过
联排别墅和独栋别墅选哪个好呢?必须选择独栋别墅,联排别墅与独栋别墅不可同日而语!

联排别墅和独栋别墅选哪个好呢?必须选择独栋别墅,联排别墅与独栋别墅不可同日而语!

联排别墅和独栋别墅选哪个好呢?必须选择独栋别墅,联排别墅与独栋别墅不可同日而语!
回老家盖一栋现代别墅,如何?现代风格乡村别墅是个不错的选择,去繁就简,不做多余装

回老家盖一栋现代别墅,如何?现代风格乡村别墅是个不错的选择,去繁就简,不做多余装

回老家盖一栋现代别墅,如何?现代风格乡村别墅是个不错的选择,去繁就简,不做多余装
别墅设计案例推荐乡村自建房外观效果,中式大宅,宋式美学!

别墅设计案例推荐乡村自建房外观效果,中式大宅,宋式美学!

别墅设计案例推荐乡村自建房外观效果,中式大宅,宋式美学!
自建房怎么设计宅地基大,可以看看这个三合院布局!

自建房怎么设计宅地基大,可以看看这个三合院布局!

自建房怎么设计宅地基大,可以看看这个三合院布局!
中式风格的乡村别墅装修好看吗?农村盖别墅装修

中式风格的乡村别墅装修好看吗?农村盖别墅装修

中式风格的乡村别墅装修好看吗?农村盖别墅装修
功能布局:5房3厅4卫。
一层布置堂屋,客厅,餐厅,老人房。
二层布置四间卧室及

功能布局:5房3厅4卫。 一层布置堂屋,客厅,餐厅,老人房。 二层布置四间卧室及

功能布局:5房3厅4卫。 一层布置堂屋,客厅,餐厅,老人房。 二层布置四间卧室及
分享五种乡村自建房玄关做法,因人而异,仅供参考。
自建房户型布局根据宅基地尺寸,

分享五种乡村自建房玄关做法,因人而异,仅供参考。 自建房户型布局根据宅基地尺寸,

分享五种乡村自建房玄关做法,因人而异,仅供参考。 自建房户型布局根据宅基地尺寸,
给大家分享一套新中式自建房外观效果图,仅供参考!

给大家分享一套新中式自建房外观效果图,仅供参考!

给大家分享一套新中式自建房外观效果图,仅供参考!
在农村盖房子,10万可以盖一层不一层乡村自建房也挺好。一层建筑主体造价约1000

在农村盖房子,10万可以盖一层不一层乡村自建房也挺好。一层建筑主体造价约1000

在农村盖房子,10万可以盖一层不一层乡村自建房也挺好。一层建筑主体造价约1000
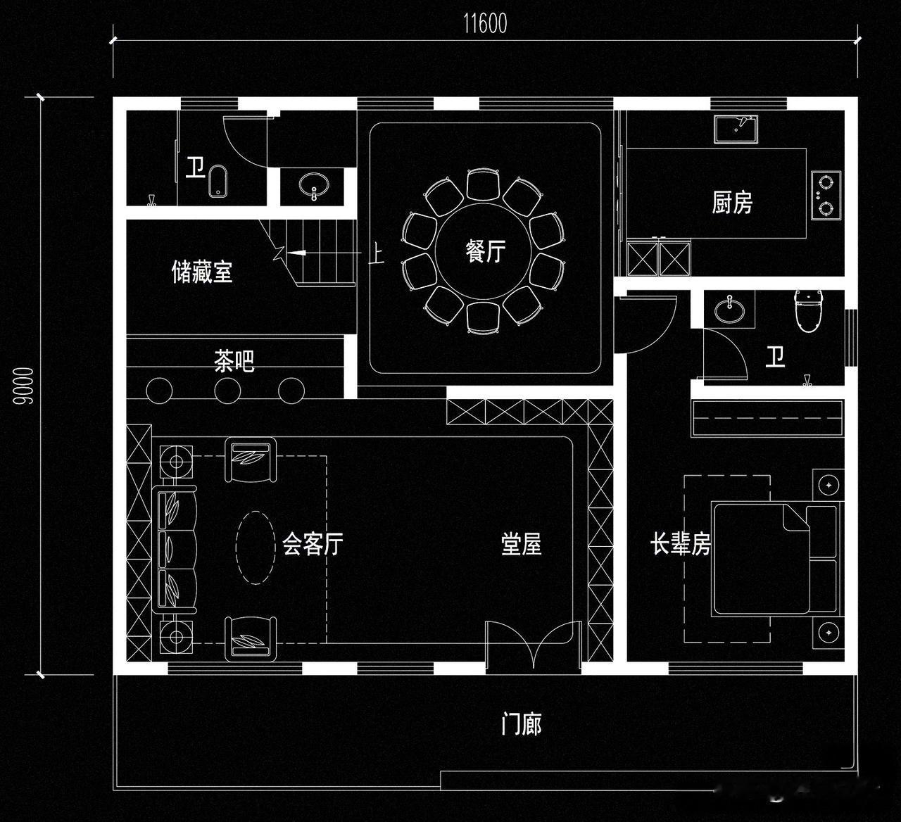
农村自建房别墅分享乡村自建房二层户型布局图,占地11.6米X9.0米。农村设计别

农村自建房别墅分享乡村自建房二层户型布局图,占地11.6米X9.0米。农村设计别

农村自建房别墅分享乡村自建房二层户型布局图,占地11.6米X9.0米。农村设计别
农村自建别墅,你钟情哪一款?回村建房,自己喜欢就好,不必在意周围人的评价,自己住

农村自建别墅,你钟情哪一款?回村建房,自己喜欢就好,不必在意周围人的评价,自己住

农村自建别墅,你钟情哪一款?回村建房,自己喜欢就好,不必在意周围人的评价,自己住
第一款:13.7米X12.7米。
 功能布局:6房4厅4卫。
第二款:12米X8

第一款:13.7米X12.7米。 功能布局:6房4厅4卫。 第二款:12米X8

第一款:13.7米X12.7米。 功能布局:6房4厅4卫。 第二款:12米X8
现代创新别墅,很喜欢这种个性,有设计感的别墅,打破传统观念,空间布局灵活多样,不

现代创新别墅,很喜欢这种个性,有设计感的别墅,打破传统观念,空间布局灵活多样,不

现代创新别墅,很喜欢这种个性,有设计感的别墅,打破传统观念,空间布局灵活多样,不
乡村自建房未来政策更严、风格更多样、功能更全、建造更省、绿色智能成标配。

 一

乡村自建房未来政策更严、风格更多样、功能更全、建造更省、绿色智能成标配。 一

乡村自建房未来政策更严、风格更多样、功能更全、建造更省、绿色智能成标配。 一
农村自建别墅,你钟情哪一款?12款乡村自建房,你喜欢哪一款?外观效果仅供参考!

农村自建别墅,你钟情哪一款?12款乡村自建房,你喜欢哪一款?外观效果仅供参考!

农村自建别墅,你钟情哪一款?12款乡村自建房,你喜欢哪一款?外观效果仅供参考!